V.P.O. ES MOLINAR, PALMA.


Promotor : IBAVI. Govern Balear.
Colaborador : J.R.Micó.


Encargo obtenido como 1er. Premio de Concurso de anteproyectos.
Bloque de viviendas en el barrio de “Es Molinar” cerca del cruce de dos vías de circulación rodada intensa, la autopista al aeropuerto y la vía de cintura.
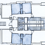
Un volumen de 6 alturas en el que se desarrollan 24 viviendas sociales. Con 4 viviendas dispuestas simétricamente en planta y un eje vertical central de comunicación.
Cocinas, lavandería y baños, como solución simplificada y económica, se adosan al eje longitudinal de planta compartiendo huecos de instalaciones.

Las zonas de día, estar-comedor, se sitúan en los vértices del rectángulo de planta buscando independencia y máxima visual hacia el exterior. El acceso desde el núcleo central de comunicaciones hasta estas zonas de estar, obliga a un giro en planta de los recintos de dormitorios que se manifiesta en 4 volúmenes verticales de fachada.