BLOQUES DE VIVIENDAS. M-30.MADRID.


Promotor : Ayuntamiento de Madrid


Anteproyecto finalista en concurso convocado en 1999 para jóvenes Arquitectos.

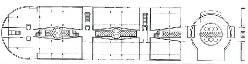
Por condiciones urbanísticas, la propuesta debía de realizarse  en 2 bloques de forma unitaria. Ambos volúmenes se componen de 3 plantas de viviendas, planta baja de locales y planta común subterránea de aparcamientos. Se optó por un diseño simétrico en distribución interior, volúmenes y composición de fachadas de ambos bloques para enfatizar el carácter unitario del conjunto, y con un acceso central y común a la planta bajo rasante de aparcamientos. Se definía en el proyecto un espacio interior abierto que recorría ambos volúmenes, con zonas ajardinadas en planta baja y en el cual confluían los núcleos de comunicaciones verticales. Fachadas en ladrillo rojo con zócalo de hormigón en toda la altura de planta baja. Volúmenes cilíndricos en extremos opuestos de ambos bloques, y cubierta inclinada metálica como remates y elementos unificadores del conjunto.