SEDE PROJECTE HOME BALEARS. PALMA.


Promotor : Ajuntament de Palma / Projecte Home Balears


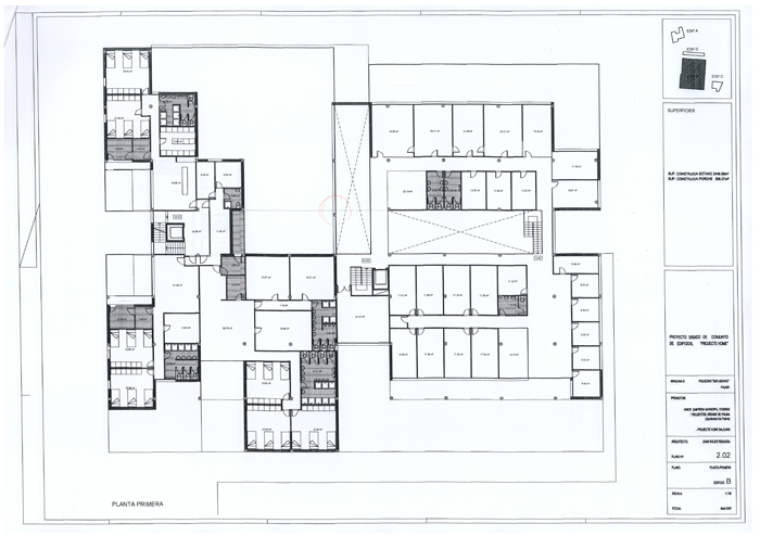
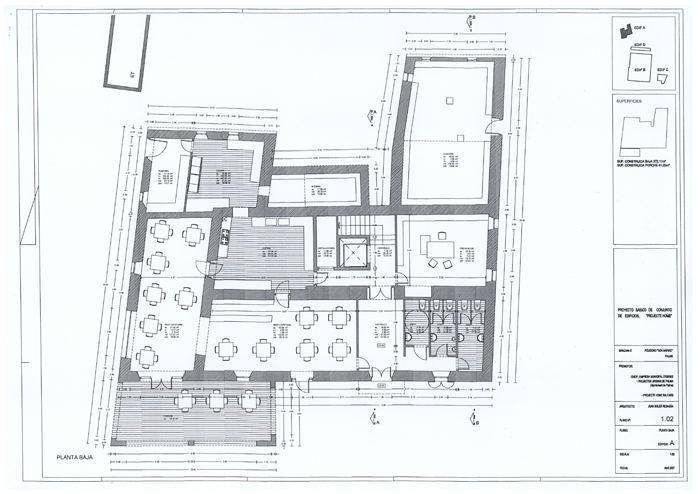
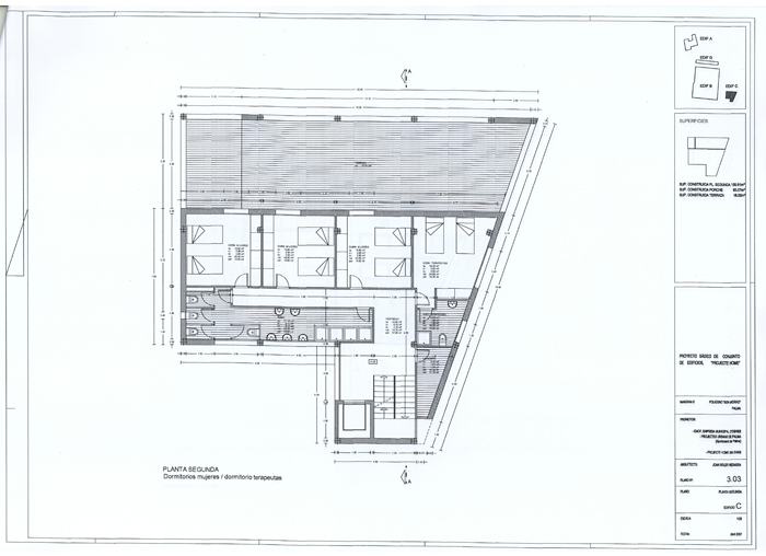
Proyecto Básico de conjunto de edificios e instalaciones para la nueva sede de Projecte Home Balears, en solar cedido por el Ayuntamiento de la ciudad en la finca de “Son Morro” a las afueras de la ciudad. Se rehabilita y reforma la antigua casa rural existente como espacio representativo y de relaciones exteriores y se propone la construcción de otros tres edificios que darían respuesta a las múltiples funciones de carácter social que desarrolla la Entidad y Fundación de la Iglesia Católica, en apoyo y rehabilitación de personas drogodependientes. Con un complejo programa funcional y en una superficie construida cercana a los 9.000 m2, se organizan espacios muy diversos de residencia, niveles de terapia, talleres de reinserción, apoyo a familias, prevención, etc. Además de múltiples espacios auxiliares de administración y organización, dirección, archivos y almacenes, salas de actos, cocinas y comedores, cafetería exterior y zonas deportivas. Todas ellas organizadas en un complicado organigrama de circulaciones de obligada privacidad e interdependencia en su funcionamiento.