AMPLIACION Y REFORMA DE “CA´N ALONSO”, PALMA.


Promotor : EMOP / Ajuntament de Palma.


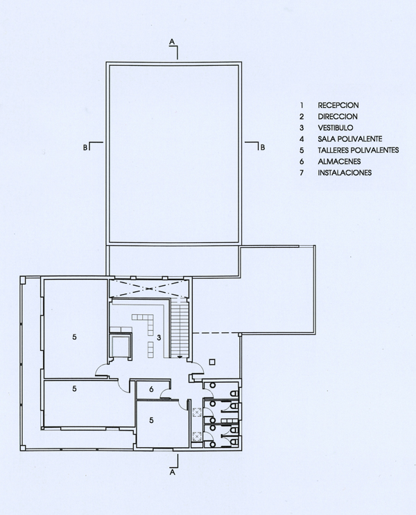
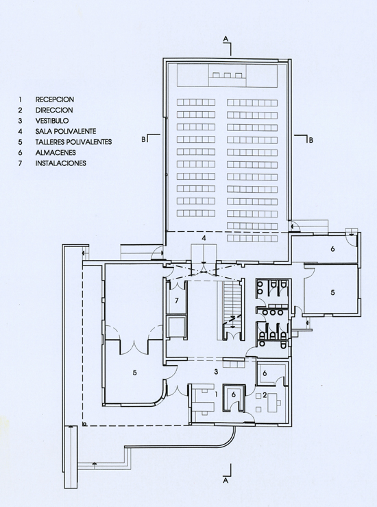
Concurso de ideas a nivel de anteproyecto para la reforma y ampliación de Ca´n Alonso para su uso como centro socio-cultural. Se trata de un edificio de estilo racionalista situado en la trama urbana de Palma. Proyectado en 1937 por Josep M. Monravá como vivienda unifamiliar, fue reformado y ampliado por F.Casas en 1941. Destaca su configuración de fachadas con huecos horizontales que remiten a la mítica Villa Savoye de Le Corbusier. En un estado de abandono y grave deterioro, el Ayuntamiento de Palma convocó un concurso para la recuperación del edificio con un nuevo uso de espacio público. El proyecto propone además de la rehabilitación de fachadas, una redistribución interior y la ampliación con un nuevo volumen armonizado con el estilo y composición de fachadas originales, adecuados al nuevo programa de necesidades. El presente proyecto obtuvo la 2ª clasificación en el mencionado concurso.