ESCUELA INFANTIL. PALMA.


Promotor : Ajuntament de Palma.


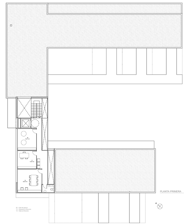
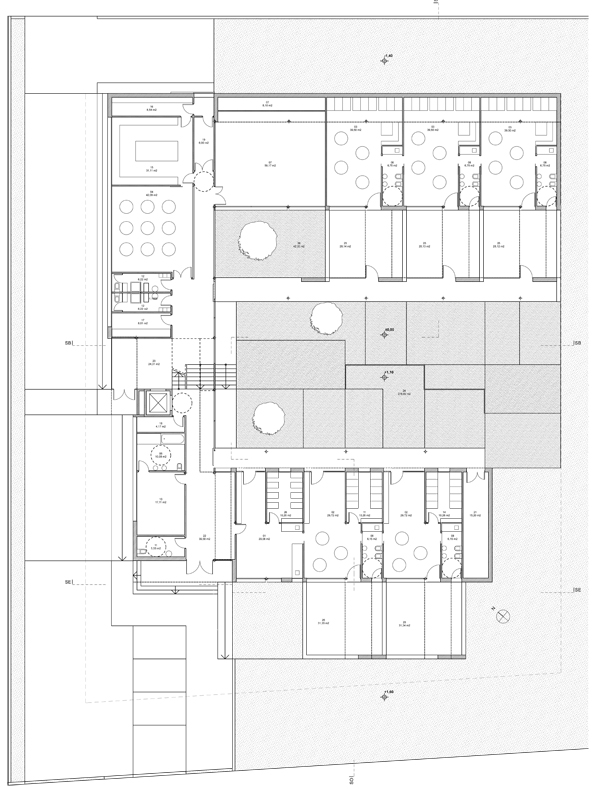
Proyecto de escuela infantil en un área de crecimiento de la trama urbana de la ciudad. El edificio se desarrolla en una planta baja a dos niveles siguiendo la pendiente del terreno donde se sitúan las aulas, comedor y espacios de actividades de los niños y una planta superior en la que se ubican las zonas de dirección y profesorado. Ambas plantas unidas por un espacio de doble altura como vestíbulo y zona de relación de los tres niveles. Cada una de las 6 aulas, dispone de su propio espacio o aula exterior anexa. Los tres lados de la planta general definen el patio común exterior abierto hacia el sur, donde se desarrollan las actividades de juego y recreo y hacia donde se abren la mayoría de espacios del edificio.