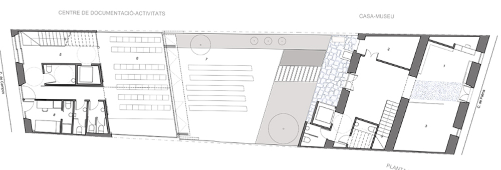
CASA-MUSEO BLAI BONET. SANTANYI.


Promotor : Consell Insular de Mallorca.


Anteproyecto para concurso de ideas de reforma de la casa del escritor Blai Bonet para su conversión en casa-museo y la creación de un centro de documentación y actividades en Santanyi. La parcela situada en la trama urbana linda con dos calles, en una de ellas esta situada la vivienda original que se reforma y rehabilita como casa-museo y en el extremo opuesto se define como volumen independiente el centro de documentación y actividades. Entre ambas construcciones y como espacio común se plantea el patio-jardín como nexo y lugar para actos al aire libre. Para la casa-museo, era condición la conservación de la volumetría y fachadas existentes así como el estudio-dormitorio del escritor. En el nuevo volumen, con sistema constructivo y lenguaje actual, se definen espacios funcionales y diáfanos para archivo-biblioteca, secretaría, sala de actos y residencia de investigadores.